Acquarossa Hotel

1/7
Next

Acquarossa Spa & Hotel is a new 120 room hotel and thermal spa in the village of Acquarossa in Ticino, Switzerland. It is designed as a contemporary type of hotel that breaks the mould of the traditional star rating, and instead brings people together based on their mutual interest in well being and experience-based tourism. By using a combination of traditional building materials and the latest construction technology, the aim is to create a hotel that is both socially and environmentally sustainable…

Acquarossa Spa & Hotel is a new 120 room hotel and thermal spa in the village of Acquarossa in Ticino, Switzerland. It is designed as a contemporary type of hotel that breaks the mould of the traditional star rating, and instead brings people together based on their mutual interest in well being and experience-based tourism. By using a combination of traditional building materials and the latest construction technology, the aim is to create a hotel that is both socially and environmentally sustainable.

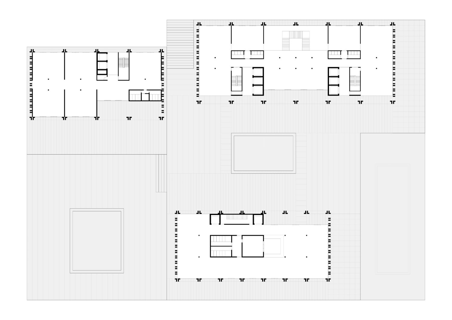
The hotel consists of three buildings that sit together on a base to form a new village like collective. The main buildings run perpendicular to the site’s contours and frame the surrounding landscape, while the plinth safeguards the natural preservation area by containing and concentrating supporting programmes. This approach achieves a strong connection to the landscape while responding to the urban context by providing a building where both public and private spaces contribute to a sense of place that can be integrated and enjoyed by the community of Acquarossa.

A grounded experience
Acquarossa Spa & Hotel is designed to provide an authentic experience of alpine life in one of the most remote parts of Switzerland where tourism is still budding. Echoing the language of the traditional rustici houses found in the local area, the design of the hotel is characterised by three expressive timber structures carefully placed on a stone plinth. The combination of natural and man-made materials gives the hotel a classical yet contemporary image, bridging modern architecture with the traditional buildings of the Swiss Alps. The hotel and its surroundings have been designed as a place to feel grounded, where the thermal spring and mountains offer a range of experiences throughout all seasons of the year.

Tradition and high-tech
The general layout of the hotel and spa is designed with the specific micro climate of the site in mind. Its orientation makes the most out of the wind and sun conditions, and all parts of the building have been considered as potentials for contributing to the sustainability of the development. The large rectangular roofs are covered with plants and solar panels, and to reduce the environmental impact of shipping and storing, all stone used in the design comes from local quarries. Tall and robust timber columns stretch all the way from the ground to the top floors, with a forest-like density on the short sides of the building. The CLT (cross laminated timber) construction is a significantly more sustainable option compared to more traditional construction methods. The latest innovation and technology is used to create a cutting edge structural design, using local materials that are central to traditional Swiss buildings.

Social sustainability
The design is made very flexible to allow for a wide range of standards in the different rooms and social spaces. Some guest rooms are simple and affordable, whereas others are spacious and luxurious, but they all share the same design language. This makes the hotel a great place for people with different backgrounds and requirements, but with shared values and interests. The main goal is to achieve a very social and relaxed atmosphere, which is reflected in all the details of the design, from the overall plan down to the furnishing, lighting and material choices.

Local sustainability
The aim of the project is to favour authentic and inclusive experiences, both for its visitors and local community. This has required the design to be developed closely together with the community, resulting in a strong relation to the site and its inhabitants. Through active participation the hotel seeks to become a genuine member of the community and contribute to the future of Acquarossa’s social and economic development. As an example, the shared spaces between the buildings are designed both for the hotel guests and for the locals of the nearby village. A plaza that has similarities to a town square, and a number of small gardens are coupled with restaurants and bars. These spaces frame spectacular views of the surrounding mountains while providing a platform for social activities. The result is a building where both public and private spaces contribute to a sense of place that is unique for Acquarossa.

  • Location: Ticino, Switzerland
  • Type: Hotel & spa
  • Year: 2018 - 2019
  • Area: 17,650 sqm / 190,000 sqft
  • Status: Under development
Team
  • Martin Brandsdal
  • Magnus Casselbrant
  • Jesper Henriksson
  • Robin Chatwin
  • Hazel Cowie
  • Charlotte Hurley
Collaborators
  • École hôtelière de Lausanne
Timeline
  • 2018: Design development
  • 2019: Planning granted