Aston Road

1/5
Next

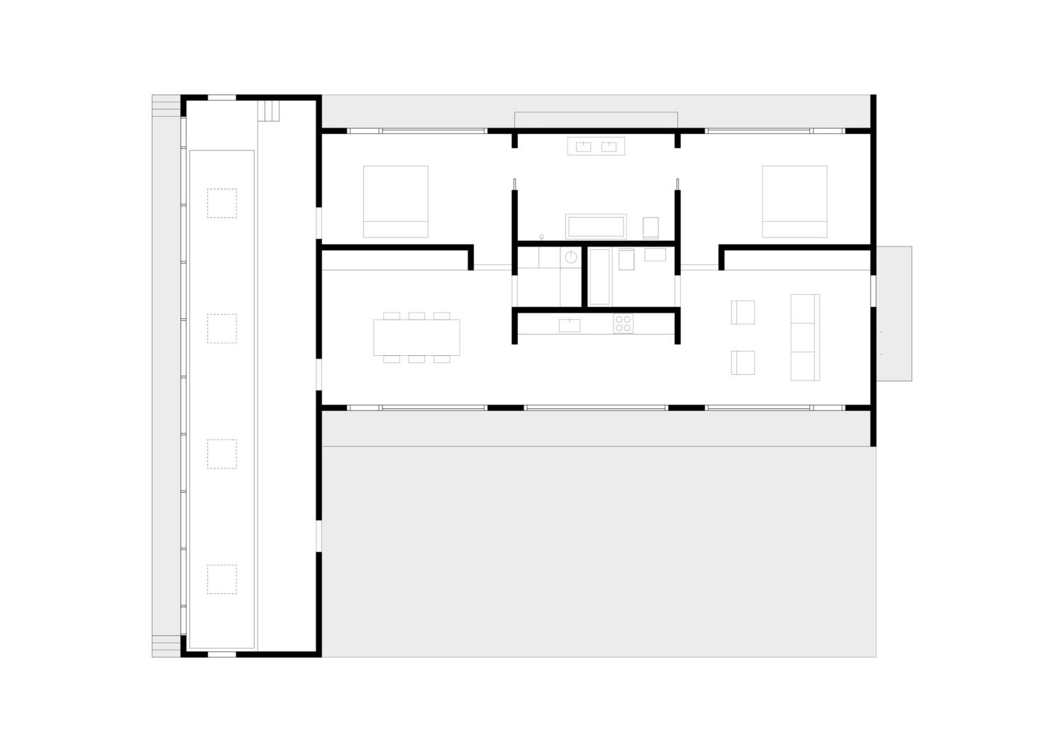
Aston Road is a single family house situated in a back land site in West London, surrounded by gardens on all side. All rooms of the house are arranged around a central core, creating long uninterrupted sight lines throughout the full width and depth of the house. The layout creates spaces for a very social lifestyle combined with generous personal spaces which are designed to be much more generous than normal bedrooms. This simplicity of the plan ultimately generates an extremely flexible house that can be used in multitude of ways and host a wide variety of social events…

Aston Road is a single family house situated in a back land site in West London, surrounded by gardens on all side. All rooms of the house are arranged around a central core, creating long uninterrupted sight lines throughout the full width and depth of the house. The layout creates spaces for a very social lifestyle combined with generous personal spaces which are designed to be much more generous than normal bedrooms. This simplicity of the plan ultimately generates an extremely flexible house that can be used in multitude of ways and host a wide variety of social events.

The two living rooms flank the central kitchen on one side of the central core, making it possible to connect all three rooms into one large space. An external terrace runs all along the three space on the south side of the building, extending the interior into the garden. On the opposite side of the building, two large personal spaces are connected via a double entrance bathroom. This makes it possible to use the spaces both as bedrooms and studies, or a combination of the two due to the generous dimensions. Both personal rooms have small, north facing terraces outside.

An indoor swimming pool stretches along the western side of the house, with a full panoramic view of the garden outside. The volume of the swimming pool building frames the courtyard outside in front of the building and divides the garden diagonally into two areas: the private north and west sides, and the social south and east sides.

  • Location: London, UK
  • Type: Residential
  • Year: 2019 - 2020
  • Area: 176 sqm / 1,900 sqft
  • Status: Pre-planning